Trilocale in vendita

Bologna, Via del Timavo - Saffi
€ 253.000
3 locali 3 locali
70 Mq 70 Mq
1 bagno 1 bagno

Trilocale in vendita

Bologna, Via del Timavo - Saffi

Descrizione annuncio

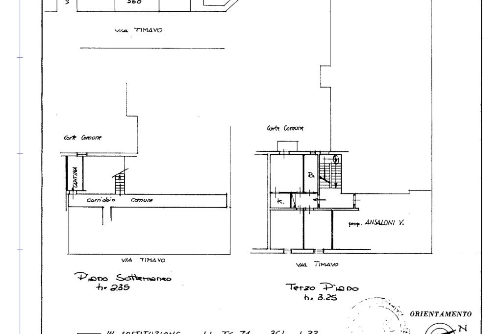
Zona Saffi: Via Timavo a due passi dall'Ospedale Maggiore, all'interno di una tipica palazzina in stile bolognese, con esterno in pietravista, proponiamo in vendita un grazioso immobile, posto al terzo piano senza ascensore.

La composizione interna prevede un ingresso, il soggiorno con cucinotto separato, da cui si accede al balcone, con gradevoli affacci sul giardino condominiale. Nella zona notte troviamo le due pratiche camere da letto ed il bagno finestrato.

Completa la proprietà la cantina al piano interrato.

L'appartamento è stato oggetto di una ristrutturazione totale, realizzata utilizzando delle finiture molto ricercate e moderne, ottenendo un risultato molto piacevole nel suo complesso, soprattutto che ha prodotto una notevole valorizzazione degli ambienti, senza stravolgere la disposizione dei locali.

I pavimenti sono i gres porcellanato effetto legno. Le porte sono in legno laccato bianco con le maniglie color argento satinato. Gli infissi sono in PVC con taglio termico e vetrocamera.

L'impianto di riscaldamento è alimentato da un caldaia autonoma, in perfetto stato d'uso, dotata di regolare libretto di manutenzione e idoneo certificato di conformità.

Anche l'impianto elettrico è stato adeguato alle normative in materia di sicurezza ed è dotato di regolare certificazione.

La soluzione abitativa è dotata di un impianto di aria condizionata.

L'immobile gode di una doppia esposizione, ventilata e luminosa.

La palazzina è ubicata in una posizione ricca di esercizi pubblici di vario genere ( negozi, scuole, farmacia, banca, supermercati ecc.) ed è molto comoda al centro di Bologna, in 10/15 minuti raggiungibile a piedi, in bici o con mezzi pubblici. Infatti nelle vicinanze troviamo varie fermate dell'autobus, tra la vie Saffi e via Vittorio Veneto.

Grazie alle sue caratteristiche, l'immobile è ideale sia per chi è alla ricerca di un immobile funzionale, che non necessita di interventi di ristrutturazione, che possa essere destinato sia come abitazione principale oppure interessante anche in termini di investimento.

Mostra tutto

Nelle vicinanze

Trasporto pubblico Trasporto pubblico
Lazzaretto
Lazzaretto
2,0 Km
Bologna AV
Bologna AV
2,1 Km
Weber
Weber
190 m
Pasubio
Pasubio
230 m
Ricariche auto elettriche Ricariche auto elettriche
BOLOGNA Cimabue | ENELX
410 m
Cimitero Monumentale di Bologna | EnelX
750 m
Bologna Ospedale Maggiore | EnelX
940 m
Eneldrive Stadio Renato Dall'Ara
1,0 Km
Be Charge
1,0 Km
Scuole Scuole
Fabrizio De Andrè
70 m
Liceo A. Righi
270 m
Maestre Pie
430 m
Liceo Scientifico Renzi Istituto Maestre Pie Dell'Addolorata
430 m
Maria Ausiliatrice
670 m
Farmacia Farmacia
Al Velodromo
230 m
Croce Bianca
440 m
Sanitaria Maggiore
470 m
Lloyds Farmacia Marzabotto
500 m
Madonna della Guardia
550 m
Ospedali Ospedali
Ospedale Maggiore "Carlo Alberto Pizzardi" Accesso Principale
500 m
CUP - Centro Unico Prenotazione Ospedale Maggiore
590 m
Ospedale Maggiore "Carlo Alberto Pizzardi"
590 m
Triage PS "Carlo Alberto Pizzardi"
630 m
Ospedali
690 m
Supermercati Supermercati
Carrefour Express
250 m
Ari Ecoidee
280 m
Coop Saffi
340 m
iN's mercato
450 m
Sigma
550 m
Negozi Negozi
Panificio Luca Acri
230 m
Negozi
240 m
Fascino Antico
240 m
La Bottega di Silvia
250 m
Alessandra
260 m
Bar Bar
Bar
230 m
A2
230 m
Bar Saffi
410 m
Oliviero
460 m
Lo Sfizio
490 m
Ristoranti Ristoranti
Trattoria Nonna Rosa
220 m
L'ingordo
250 m
Pizzeria Napulé
260 m
Bottega della Sfoglina
260 m
Pantera Rosa - Takeaway
310 m
Mostra tutto

Caratteristiche

Rif.:
61120244
Piano:
3 di 4 (Piano medio)
Balconi:
1
Camere da letto:
2
Arredamento:
Assente
Condizionamento:
Autonomo
Mostra tutto
Prezzo Prezzo
€ 253.000
Rata mutuo Rata mutuo
€ 1.162 / mese
Spese annue Spese annue
€ 600
Proponi il tuo prezzoProponi il tuo prezzo

Classe Energetica

F
F
F
F
F
F
F
F
F
Anno di costruzione:
1960
Riscaldamento:
Autonomo
Tipo impianto:
A radiatori
Tipo alimentazione:
Metano

Ti interessa visionare l'immobile?

Fissa un appuntamento  Fissa un appuntamento

Richiedi informazioni

* Questi campi sono obbligatori

Calcola il tuo mutuo

Semplice e senza impegno
Anticipo

( % )
Mutuo

( % )

pochi semplici passi

inserisci i tuoi dati
Questionario completato
Grazie per aver richiesto un appuntamento senza impegno con un nostro Consulente del Credito e Assicurativo.

Hai inserito correttamente tutti i dati necessari e a breve riceverai una e-mail con un link da convalidare per inviare i tuoi dati.
Affiliato
Metropolis Immobiliare Srlsu
Via Della Barca, 36 40133 Bologna (BO)
Via Della Barca, 36 40133 Bologna (BO)
Zona: Q.re Reno: Terme Felsinee - Centro Primavera - Barca
Mostra su mappa
Orari: Dal Lunedì al Venerdì 9.00-13.00 - 15.00-20.00 - Sabato 9.00-13.00
Affiliato
Metropolis Immobiliare Srlsu
Via Della Barca, 36 40133 Bologna (BO)

2025 Tecnocasa Franchising S.p.A. - P. IVA 08365160152 - Via Monte Bianco 60/A 20089 Rozzano (MI). Ogni agenzia ha un proprio titolare ed è autonoma. Privacy policy | Policy utilizzo | Cookie policy