Quadrilocale in vendita

Bologna, Via P. Lorenzetti A. E - Centro Primavera Barca
€ 373.000
4 locali 4 locali
105 Mq 105 Mq
2 bagni 2 bagni

Quadrilocale in vendita

Bologna, Via P. Lorenzetti A. E - Centro Primavera Barca

Descrizione annuncio

Centro Primavera Via Lorenzetti All'interno di un contesto residenziale immerso nel verde di un curato parco condominiale di ca 5.000, ( campo da basket, volley, ping pong ecc.) e circondato da splendidi giardini pubblici, tra cui spicca il Parco Zanardi, uno dei polmoni della zona Funivia.

La soluzione abitativa che vi proponiamo in vendita è la giusta combinazione tra qualità e praticità. L'immobile è stato oggetto di una ristrutturazione curata in ogni dettaglio, ultimata nel 2019, dove la proprietà è riuscita a valorizzare nel migliore dei modi gli spazi a disposizione, creando tutti ambienti ampi e funzionali alla vita quotidiana di una famiglia.

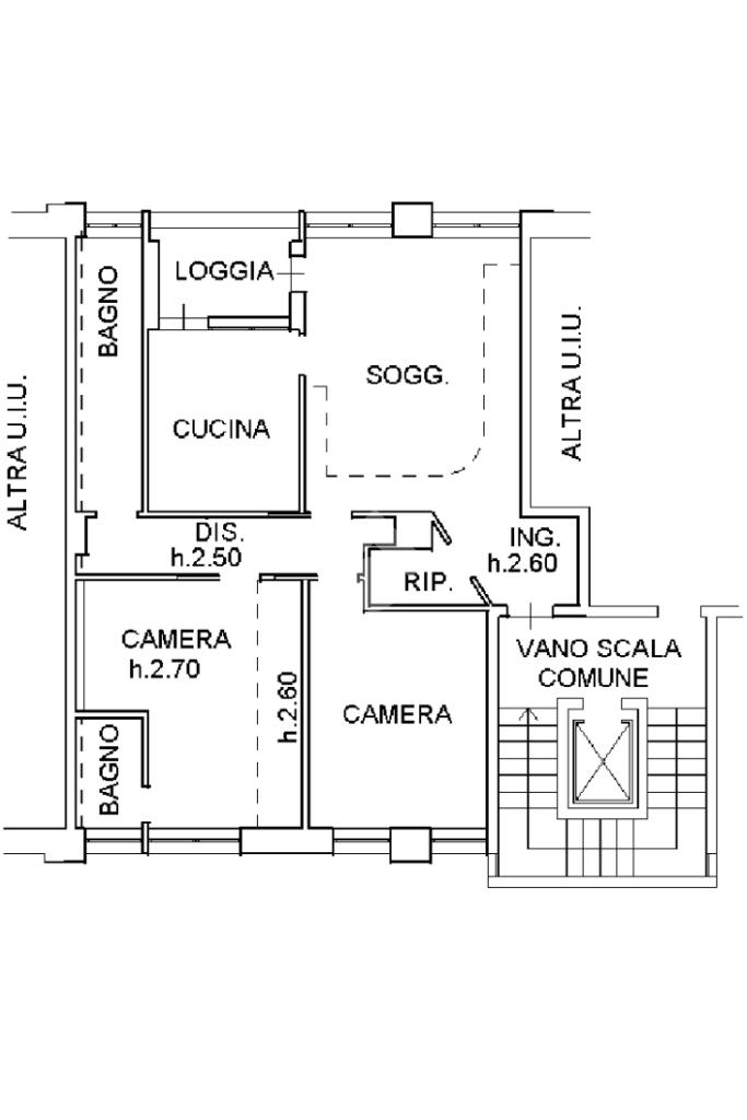
La disposizione ne è un chiaro esempio, poichè si compone di un ingresso direttamente sulla sala, spaziosa e luminosa, da cui è possibile accedere ad una cucina abitabile, moderna e conviviale, fulcro della quotidianità della famiglia.

Il terrazzino a loggia è accedibile sia dalla sala che dalla cucina ed affaccia direttamente sul parco condominiale.

A completare la zona giorno, troviamo, in entrata, un ripostiglio molto utile e pratico.

La zona notte è ben separata dalla zona giorno e prevede due camere da letto, di forma regolare e facilmente arredabili e due bagni, entrambi finestrati, di cui uno con accesso esclusivo dalla camera matrimoniale. Ogni camera è dotata di uno split per l'aria condizionata.

I pavimenti sono in gres porcellanato effetto legno posati uniformemente in tutta la casa. Anche i rivestimenti della cucina e dei bagni sono in gres porcellanato, dove spiccano soprattutto quelli posati in cucina, poichè trattasi di lastre monoblocco, effetto pietra levigata.

Controsoffitti con faretti e velette illuminate con le luci a led, corrono lungo le pareti della zona giorno e proseguono nel disimpegno notte e nella camere, quasi a creare una sorta di continuità stilistica tra la zona giorno e la zona notte.

Le porte sono in legno e ben si sposano con le finiture degli immobili, come le porte scorrevoli, in vetro satinato e temperato, che sono state montate in cucina ed all'ingresso della zona notte, che danno ulteriore risalto dal punto di vista estetico alla sala. Tapparelle automatizzate con apertura e chiusura centralizzata (Domotica).

Gli infissi esterni con in PVC bianco a basso emissivo, con taglio termico, in linea con le attuali normative in materia risparmio energetico. A questo dobbiamo aggiungere i lavori fatti nel condominio, usufruendo del SuperBonus 110%. Cl. Energetica B.

L'appartamento è ubicato al sesto piano con ascensore, recentemente sostituito, con splendidi affacci sul parco condominiale, dal lato giorno, mentre dalle camere è possibile godersi una vista panoramica sulla Basilica di San Luca e i suoi suggestivi portici. Inoltre la casa è molto luminosa e ben ventilata, grazie alla sua doppia esposizione.

Cantina ciclabile. Garage a Parte € 25.000,00

La zona è molto servita, con vari esercizi pubblici nelle immediate vicinanze; inoltre è molto apprezzata per la facilità con cui è possibile raggiungere il centro di Bologna, utilizzando i frequenti mezzi pubblici di cui è servita (linee 14-21-36). Altrettanto vale per le aree extraurbane, poichè a pochi minuti da casa troviamo gli imbocchi di tangenziale e autostrada.

Mostra tutto

Nelle vicinanze

Trasporto pubblico Trasporto pubblico
Casalecchio Garibaldi
Casalecchio Garibaldi
1,8 Km
Casteldebole
Casteldebole
1,9 Km
Lorenzetti
Lorenzetti
30 m
Filanda
Filanda
120 m
Casalecchio Ceretolo
Casalecchio Ceretolo
2,6 Km
Ricariche auto elettriche Ricariche auto elettriche
Bologna Andrea Costa | EnelX
1,2 Km
Cimitero Monumentale di Bologna | EnelX
1,5 Km
Eneldrive Stadio Renato Dall'Ara
1,6 Km
Bologna Irma Bandiera | HERA
1,6 Km
Bologna Casteldebole | EnelX
1,6 Km
Scuole Scuole
Scuola dell'Infanzia Fantini
70 m
Scuola Elementare XXV Aprile
460 m
IIS Belluzzi-Fioravanti
540 m
Scuola Elementare Cesana
540 m
IIS Belluzzi Fioravanti
620 m
Farmacia Farmacia
Barca
450 m
Farmacia della Barca
480 m
Comunale
560 m
Crocioni
710 m
Sant'Andrea alla Barca
760 m
Ospedali Ospedali
Villa Chiara
1,1 Km
Ospedale Privato Santa Viola
1,8 Km
Croce Rossa Italiana - Comitato di Bologna
2,1 Km
Centrale Operativa 118 - Emilia Est
2,2 Km
Casa della Salute
2,3 Km
Supermercati Supermercati
Eurospar
360 m
Carrefour
510 m
COOP
560 m
Conad
1,4 Km
Supermercati
1,6 Km
Negozi Negozi
Panifici Nanni
490 m
Negozi
570 m
Panificio Luca Acri
970 m
NaturaSì
1,8 Km
Neri Giancarlo
1,8 Km
Bar Bar
Dolce Brivido
930 m
Bar
1,3 Km
Bar
1,3 Km
BBC
1,4 Km
Discoteca Matis
1,6 Km
Ristoranti Ristoranti
Puyuma
470 m
Ristoranti
510 m
Ristorante Mikonos 2
530 m
Trattoria Boni
630 m
Pizzeria Dai Ragazzi
800 m
Mostra tutto

Caratteristiche

Rif.:
61128086
Piano:
6 di 9 con ascensore (Piano alto)
Box:
1
Balconi:
1
Camere da letto:
2
Arredamento:
Assente
Mostra tutto
Prezzo Prezzo
€ 373.000
Prezzo box Prezzo box
€ 25.000
Rata mutuo Rata mutuo
€ 1.713 / mese
Spese annue Spese annue
€ 2.500
Proponi il tuo prezzoProponi il tuo prezzo

Classe Energetica

B
B
B
B
B
B
B
B
B
EP globale non rinnovabile:
92.00 kW h/m² anno
EP globale rinnovabile:
92.00 kW h/m² anno
Anno di costruzione:
1969
Riscaldamento:
Centralizzato
Tipo impianto:
A radiatori
Tipo alimentazione:
Metano

Ti interessa visionare l'immobile?

Fissa un appuntamento  Fissa un appuntamento

Richiedi informazioni

* Questi campi sono obbligatori

Calcola il tuo mutuo

Semplice e senza impegno
Anticipo

( % )
Mutuo

( % )

pochi semplici passi

inserisci i tuoi dati
Questionario completato
Grazie per aver richiesto un appuntamento senza impegno con un nostro Consulente del Credito e Assicurativo.

Hai inserito correttamente tutti i dati necessari e a breve riceverai una e-mail con un link da convalidare per inviare i tuoi dati.
Affiliato
Metropolis Immobiliare Srlsu
Via Della Barca, 36 40133 Bologna (BO)
Via Della Barca, 36 40133 Bologna (BO)
Zona: Q.re Reno: Terme Felsinee - Centro Primavera - Barca
Mostra su mappa
Orari: Dal Lunedì al Venerdì 9.00-13.00 - 15.00-20.00 - Sabato 9.00-13.00
Affiliato
Metropolis Immobiliare Srlsu
Via Della Barca, 36 40133 Bologna (BO)

2025 Tecnocasa Franchising S.p.A. - P. IVA 08365160152 - Via Monte Bianco 60/A 20089 Rozzano (MI). Ogni agenzia ha un proprio titolare ed è autonoma. Privacy policy | Policy utilizzo | Cookie policy