5 locali in vendita

Bologna, Via alceste de ambris - Barca
€ 330.000
5 locali 5 locali
130 Mq 130 Mq
2 bagni 2 bagni

5 locali in vendita

Bologna, Via alceste de ambris - Barca

Descrizione annuncio

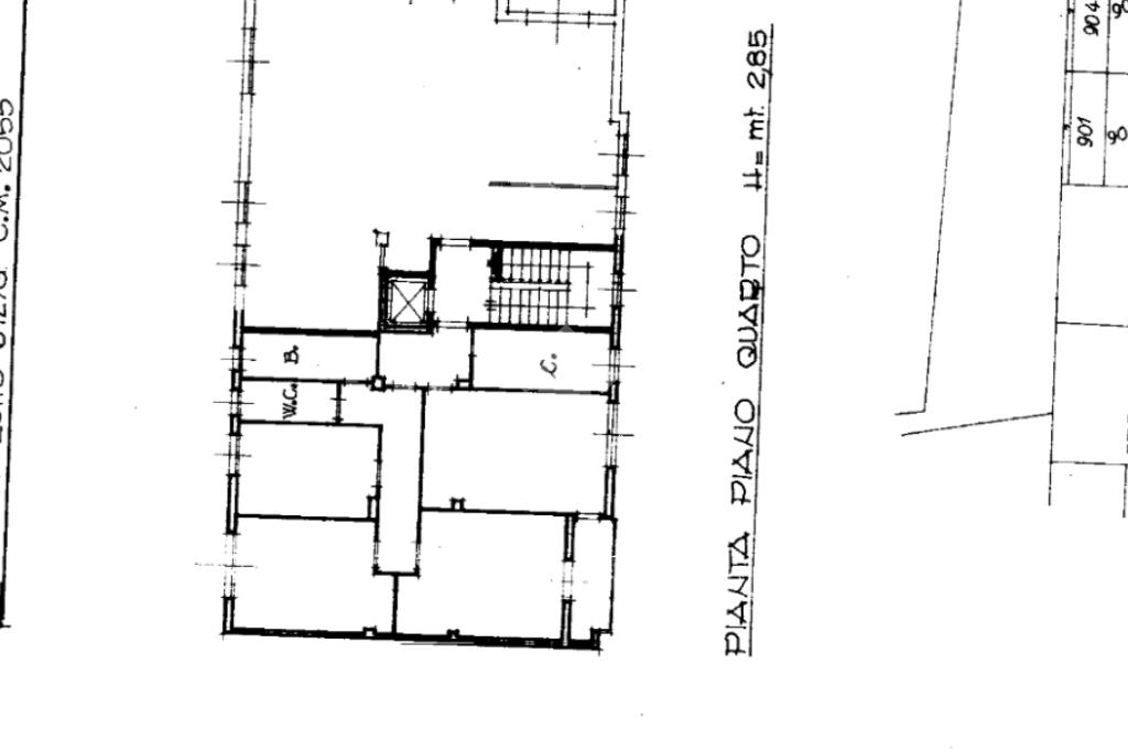
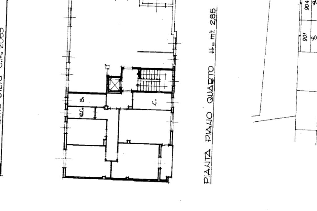
Zona Barca: Via De Ambris all'interno di una palazzina di 9 unità abitative, immerso nel verde dell'adiacente Parco Pubblico Teresa Noce, proponiamo in vendita appartamento di ampia metratura, ubicato al 4° piano servito dall'ascensore, e si dispone internamente di un ingresso da cui si disimpegnano la sala, spaziosa e luminosa, la cucina abitabile. Dalla sala è possibile accedere al balcone a loggia, con gradevoli affacci sul parco pubblico. Nella zona notte troviamo un disimpegno arredato con un pratico armadio a muro, 3 camere da letto ( di cui 2 matrimoniali e una doppia) e i doppi servizi entrambi finestrati.

Completa la proprietà una cantina ciclabile. Volendo a parte un'autorimessa singola, ideale per qualunque tipo di veicolo. Prezzo € 35.000,00.

L'immobile si presenta in buono stato di manutenzione, con finiture risalente al periodo edificativo del fabbricato. La struttura architettonica dell'appartamento permette di appportare delle modifiche interne, in particolare nella zona giorno, con la possibilità di valorizzare al meglio gli spazi che compongono la soluzione abitativa.

L'appartamento ha una doppia esposizione, luminosa e ben ventilata, il tutto coadiuvato dal piano di ubicazione.

Il condominio è ben tenuto, molto curata anche il giardino di pertinenza dello stabile, che confina con l'adiacente parco Teresa Noce. Inoltre la posizione del fabbricato garantisce tranquillità e riservatezza, in quanto la via è a fondo chiuso, con un transito veicolare quasi riservato ai soli abitanti della zona.

Frontale all'ingresso del palazzo, troviamo un comodo parcheggio per le auto, dove è possibile parcheggiare un veicolo per ogni condomino.

A disposizione dei condomini l'uso di 2 terrazzi, uno coperto al 5°piano e uno scoperto sul tetto piano. Inoltre tra le parti comuni del condonimio è presente un'autorimessa, che viene utilizzata per vari usi, tra cui le riunioni condominiali.

La zona è molto apprezzata per la comodità a tutti i servizi di zona, supermercati, scuole, mezzi pubblici, imbocco autostrada e tangenziale, e al centro storico di bologna.

Per tutte queste caratteristiche, l'immobile è ideale per soddisfare le esigenze abitative di famiglie, interessate a zone con i servizi comodi, sotto casa ed al tempo stesso voglia godersi la tranquillià e la riservatezza della propria abitazione, immersi nel verde.

Mostra tutto

Nelle vicinanze

Trasporto pubblico Trasporto pubblico
Casteldebole
Casteldebole
1,6 Km
Casalecchio Garibaldi
Casalecchio Garibaldi
1,9 Km
De Ambris
De Ambris
150 m
Di Vittorio
Di Vittorio
170 m
stazione di Bologna Borgo Panigale
stazione di Bologna Borgo Panigale
2,3 Km
Ricariche auto elettriche Ricariche auto elettriche
Bologna Casteldebole | EnelX
1,3 Km
Bologna Andrea Costa | EnelX
1,3 Km
Cimitero Monumentale di Bologna | EnelX
1,5 Km
Eneldrive Stadio Renato Dall'Ara
1,7 Km
Bologna Irma Bandiera | HERA
1,7 Km
Scuole Scuole
Scuola dell'Infanzia Fantini
410 m
Scuola Giovanni XXIII - Istituto Comprensivo 1
540 m
IIS Belluzzi-Fioravanti
680 m
Scuola Elementare Cesana
690 m
IIS Belluzzi Fioravanti
720 m
Farmacia Farmacia
Barca
230 m
Farmacia della Barca
240 m
Sant'Andrea alla Barca
450 m
Santa Lucia
670 m
Crocioni
860 m
Ospedali Ospedali
Villa Chiara
1,4 Km
Ospedale Privato Santa Viola
1,6 Km
Croce Rossa Italiana - Comitato di Bologna
1,9 Km
Centrale Operativa 118 - Emilia Est
2,1 Km
Croce Rossa Italiana corpo militare
2,1 Km
Supermercati Supermercati
Eurospar
170 m
COOP
220 m
Carrefour
840 m
Conad
1,1 Km
Supermercati
1,4 Km
Negozi Negozi
Panifici Nanni
240 m
Panificio Luca Acri
740 m
Negozi
870 m
Garulli
1,7 Km
Frapp
1,7 Km
Bar Bar
Dolce Brivido
700 m
Discoteca Matis
1,3 Km
Bar
1,4 Km
Bar
1,5 Km
Freesby
1,7 Km
Ristoranti Ristoranti
Ristorante Pizzeria Due Lune
710 m
Puyuma
820 m
Ristoranti
830 m
Ristorante Mikonos 2
870 m
Trattoria Boni
920 m
Mostra tutto

Caratteristiche

Rif.:
61153937
Piano:
4 di 5 con ascensore (Piano alto)
Box:
1
Balconi:
1
Camere da letto:
3
Arredamento:
Assente
Mostra tutto
Prezzo Prezzo
€ 330.000
Rata mutuo Rata mutuo
€ 1.558 / mese
Spese annue Spese annue
€ 2.500
Proponi il tuo prezzoProponi il tuo prezzo

Classe Energetica

G
G
G
G
G
G
G
G
G
EP globale non rinnovabile:
200.00 kW h/m² anno
EP globale rinnovabile:
200.00 kW h/m² anno
EP invernale del fabbricato:
EP estiva del fabbricato:
Anno di costruzione:
1970
Riscaldamento:
Centralizzato
Tipo impianto:
A radiatori
Tipo alimentazione:
Metano

Ti interessa visionare l'immobile?

Fissa un appuntamento  Fissa un appuntamento

Richiedi informazioni

Clicca su Leggi per aprire l'informativa
* Questi campi sono obbligatori

Calcola il tuo mutuo

Semplice e senza impegno
Anticipo

( % )
Mutuo

( % )

pochi semplici passi

inserisci i tuoi dati
Questionario completato
Grazie per aver richiesto un appuntamento senza impegno con un nostro Consulente del Credito e Assicurativo.

Hai inserito correttamente tutti i dati necessari e a breve riceverai una e-mail con un link da convalidare per inviare i tuoi dati.
Affiliato
Metropolis Immobiliare Srlsu
Via Della Barca, 36 40133 Bologna (BO)
Via Della Barca, 36 40133 Bologna (BO)
Zona: Q.re Reno: Terme Felsinee - Centro Primavera - Barca
Mostra su mappa
Orari: Dal Lunedì al Venerdì 9.00-13.00 - 15.00-20.00 - Sabato 9.00-13.00
Affiliato
Metropolis Immobiliare Srlsu
Via Della Barca, 36 40133 Bologna (BO)

2025 Tecnocasa Franchising S.p.A. - P. IVA 08365160152 - Via Monte Bianco 60/A 20089 Rozzano (MI). Ogni agenzia ha un proprio titolare ed è autonoma. Privacy policy | Policy utilizzo | Cookie policy