5 locali in vendita

Bologna, Via ramenghi - Barca
€ 712.000
5 locali 5 locali
175 Mq 175 Mq
2 bagni 2 bagni

5 locali in vendita

Bologna, Via ramenghi - Barca

Descrizione annuncio

Zona Parco Nicholas Green - Ghisello a due passi dalla zona Funivia in via Bartolomeo Ramenghi Proponiamo in Vendita una Soluzione Unica nel Suo Genere.

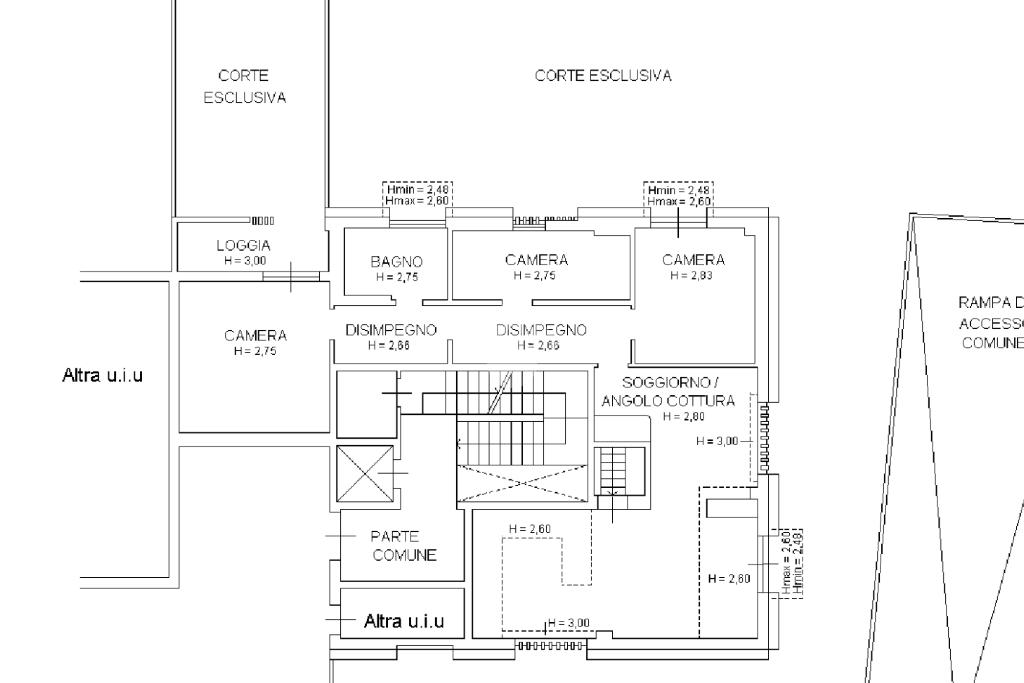
In contesto residenziale di recente costruzione, all'interno di una signorile palazzina in pietravista, proponiamo un appartamento di ampia metratura (180 mq), posto al piano terreno, con entrata indipendente, dotato di un GIARDINO PRIVATO di ca 270 mq.

L'immobile si dispone di un ingresso direttamente su una spaziosa zona living dove spicca una funzionale cucina a vista.

Proseguendo si accede ad un disimpegno notte dove si sviluppano 3 camere da letto e un bagno.

Dalla zona giorno, tramite una scala interna, si può accedere al piano interrato dove troviamo un ampio locale, open space, di ca 80 mq, adibito a taverna con camino in muratura, dotato di una cappa fumaria

indipendente, ad alto tiraggio. Inoltre nella taverna troviamo un ampio bagno e un ripostiglio.

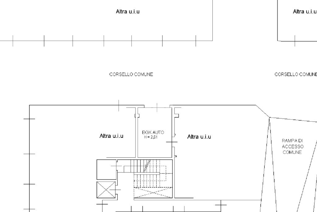
Dalla taverna è possibile accedere ad un'ampia autorimessa di ca 25 mq. Il prezzo dell'autorimessa, a parte del prezzo dell'immobile, è di € 38.000,00.

La Taverna, uno degli elementi unici dell'immobile, è un ambiente molto versatile, poichè può essere utilizzato come studio, zona per gli ospiti o come sala per pranzi o cene conviviali con amici e parenti, visto che è dotata di una cucina; oppure può essere utilizzata come palestra o sala giochi per i bambini.

Altro elemento di spicco della casa, è il giardino privato che circonda su 3 lati l'immobile, infatti è possibile accedervi da vari ambienti dell'immobile. Il giardino prevede una parte pavimentata e un pratico gazebo dove ripararsi nelle giornate afose.

Da apprezzare anche l'esposizione, con uno

splendido affaccio direttamente su Parco Nicholas Green, diventato un punto di riferimento della zona, con le sue piste ciclabili e pedonali, che ti collegano alla città.

Le finiture dell'immobile sono di assoluto pregio, con ceramiche e parquet di prima scelta. I bagni sono stati recentemente ristrutturati (2018). Impianti a norma certificati. Impianto di climatizzazione canalizzato con bocchette posizionate in ogni ambiente.

Infine la zona è tra le più richieste della zona di Bologna Ponente, grazie a quel mix perfetto di tranquillità, riservatezza e comodità a tutti i servizi primari (negozi, banche, scuole, farmacia, autobus ecc), oltre ad essere per collegata al centro della città e alle vie di comunicazione extraurbane (tangenziale e autostrada).

Mostra tutto

Nelle vicinanze

Trasporto pubblico Trasporto pubblico
Casteldebole
Casteldebole
2,2 Km
Casalecchio Garibaldi
Casalecchio Garibaldi
2,5 Km
Barca Guardassoni
Barca Guardassoni
180 m
Barca
Barca
210 m
stazione di Bologna Borgo Panigale
stazione di Bologna Borgo Panigale
2,5 Km
Ricariche auto elettriche Ricariche auto elettriche
Bologna Andrea Costa | EnelX
660 m
Cimitero Monumentale di Bologna | EnelX
860 m
Eneldrive Stadio Renato Dall'Ara
1,1 Km
Bologna Irma Bandiera | HERA
1,1 Km
BOLOGNA Cimabue | ENELX
1,5 Km
Scuole Scuole
Scuola Elementare Cesana
240 m
Scuola dell'Infanzia Fantini
620 m
Scuola Primaria Drusiani
980 m
Scuole
1,0 Km
Scuola Elementare XXV Aprile
1,1 Km
Farmacia Farmacia
Crocioni
300 m
Barca
480 m
Farmacia della Barca
510 m
Santa Lucia
600 m
Bertelli
620 m
Ospedali Ospedali
Ospedale Privato Santa Viola
1,2 Km
Croce Rossa Italiana - Comitato di Bologna
1,4 Km
Centrale Operativa 118 - Emilia Est
1,6 Km
Ospedali
1,6 Km
Ospedale Maggiore "Carlo Alberto Pizzardi" Accesso Principale
1,7 Km
Supermercati Supermercati
Carrefour
710 m
COOP
770 m
Eurospar
830 m
Supermercati
1,0 Km
Conad
1,1 Km
Negozi Negozi
Panifici Nanni
510 m
Negozi
580 m
Panificio Luca Acri
620 m
Neri Giancarlo
1,2 Km
Rosticasa
1,2 Km
Bar Bar
Dolce Brivido
590 m
Oliviero
1,1 Km
Bar Stadio
1,2 Km
Happy
1,4 Km
Bar
1,4 Km
Ristoranti Ristoranti
Pizzeria Dai Ragazzi
500 m
La Langouste
510 m
Nikkozen
530 m
Ristorante Pizzeria Due Lune
620 m
Trattoria Boni
650 m
Mostra tutto

Caratteristiche

Rif.:
61169265
Piano:
Terra di 5
Totale piani:
5
Box:
1
Camere da letto:
3
Arredamento:
Parziale
Mostra tutto
Prezzo Prezzo
€ 712.000
Prezzo box Prezzo box
€ 38.000
Rata mutuo Rata mutuo
€ 3.382 / mese
Proponi il tuo prezzoProponi il tuo prezzo

Classe Energetica

C
C
C
C
C
C
C
C
C
EP globale non rinnovabile:
135.84 kW h/m² anno
Anno di costruzione:
2000
Riscaldamento:
Autonomo
Tipo impianto:
A radiatori
Tipo alimentazione:
Metano

Ti interessa visionare l'immobile?

Fissa un appuntamento  Fissa un appuntamento

Richiedi informazioni

Clicca su Leggi per aprire l'informativa
* Questi campi sono obbligatori

Calcola il tuo mutuo

Semplice e senza impegno
Anticipo

( % )
Mutuo

( % )

pochi semplici passi

inserisci i tuoi dati
Questionario completato
Grazie per aver richiesto un appuntamento senza impegno con un nostro Consulente del Credito e Assicurativo.

Hai inserito correttamente tutti i dati necessari e a breve riceverai una e-mail con un link da convalidare per inviare i tuoi dati.
Affiliato
Metropolis Immobiliare Srlsu
Via Della Barca, 36 40133 Bologna (BO)

Il nostro staff


  • Alessandro Brighetti
    Affiliato

  • Marco Angelo Motta
    Affiliato

  • Stefania Fusco
    Collaboratrice

  • Angelica Martano
    Coordinatrice
Via Della Barca, 36 40133 Bologna (BO)
Zona: Q.re Reno: Terme Felsinee - Centro Primavera - Barca
Mostra su mappa
Orari: Dal Lunedì al Venerdì 9.00-13.00 - 15.00-20.00 - Sabato 9.00-13.00
Affiliato
Metropolis Immobiliare Srlsu
Via Della Barca, 36 40133 Bologna (BO)

2026 Tecnocasa Franchising S.p.A. - P. IVA 08365160152 - Via Monte Bianco 60/A 20089 Rozzano (MI). Ogni agenzia ha un proprio titolare ed è autonoma. Privacy policy | Policy utilizzo | Cookie policy